Page 87 - 6_Technika_60_BORITOVAL

Basic HTML Version

INFORMÁCIÓ ÉS ÁTADÁSA
Napi tanulóidőnk és otthoni munkavég-
zésünk mellett szükség van kikapcsolódásra is. Ha az időjárás nem kedvező, beszoru-
lunk a lakásba. Ilyenkor egyedül vagy barátaiddal is jól elszórakozhatsz egy ördögla-
kat-feladat megoldásával.
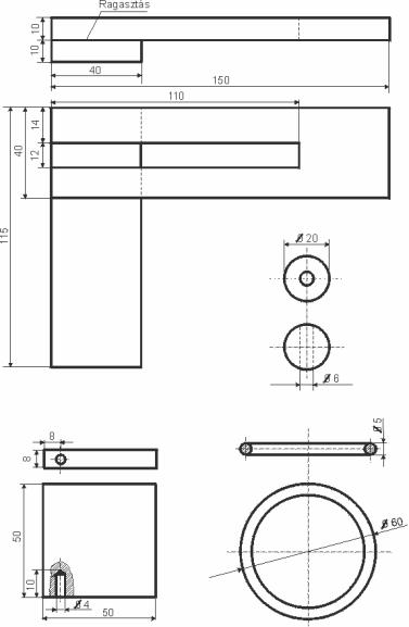
Egy különleges, fából készült ördöglakat elkészítéséhez nyújtunk segítséget.
Projekt:
1. Tanulmányozd az axonometrikus ábrázolás tí-
pusait! Készítsd el szabad kézzel a füzetedbe az
axonometrikus kép alapján az alakzat három ve-
tületi képét!
2. Gyakorold az ördöglakat rajzán a rajzolvasást!
Készítsd el az ördöglakatot!
3. Készítsd el egy 90 × 90 × 90 mm-es kockából
álló, háromfokú lépcső ferdeszögű axonometri-
kus rajzát!
Ellenőrizd a tudásodat!
Milyen típusú műszaki rajzokat készíthetünk a tárgyakról?
Mi jellemzi ezeket az ábrázolási módokat?
Milyen jelölésmódokat használunk a vetületi ábrázolásnál?
Ördöglakat alkatrészei és összeszerelt állapotban
6_Technika_60.indd 87
2013.07.25. 7:1